Format Design – Edinburgh Architectural Services

0 131 661 7666

|

formatdesign@aol.com

Architectural Services

for domestic and commercial properties

We provide expert guidance throughout your property’s transformation, while making sure all work is being done in accordance with law’s requirements.

Over 50 years of experience

Format Design specialises in providing architectural design services to residential and commercial clients in Edinburgh and throughout Scotland.

Established in 1970, our wealth of experience is recognised by a multitude of Clients and Local Authorities, who recognize and value the exceptional quality embedded in every project we undertake and deliver within efficient timelines.

Our client’s vision is paramount to us

We like to work with the client to develop a brief where the their visions and ambitions are achieved with input by our design team. Working within parameters and constraints of Planning Policies and Building Regulations.

Architectural services for
domestic and commercial clients

Our Projects

Here are some of
our clients

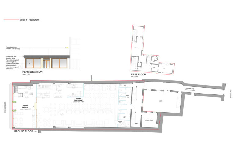
Amarone-restaurants
Work with us

Looking for a team of experts
for your property upgrade?

Get In Touch Now

e-mail: formatdesign@aol.com

tel: 0 131 661 7666